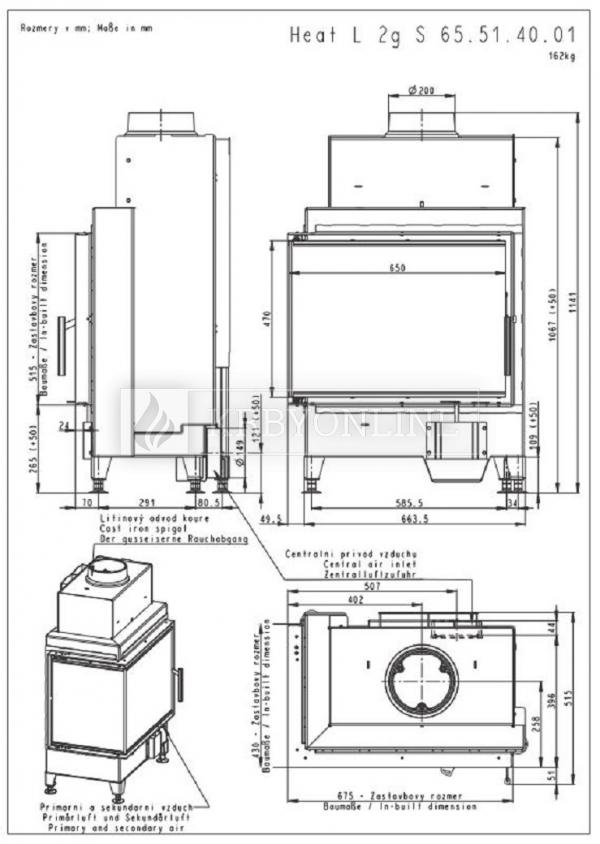
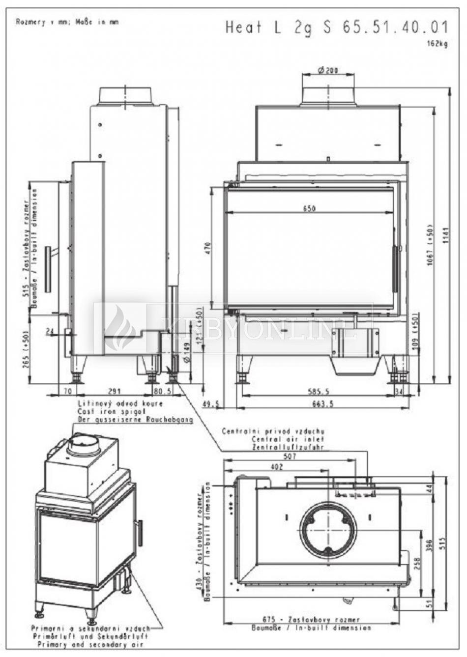
HEAT L 2g S 65.51.40.01 - teplovzdušná rohová krbová vložka s ohýbaným sklom
![]()
Rozmýšľate o kúpe krbových kachlí alebo krbu? Potrebujete poradiť, podľa čoho treba vyberať? Aké krbové kachle alebo krbové vložky treba zaobstarať do nízkoenergetických domov? Aké druhy akumulácií je možné využiť? K čomu slúžia akumulačné prvky? Náš odborný tím radi Vám pomôže pri výbere a správnej dimenzácii krbových kachlí a vložiek.
Česká spoločnosť ROMOTOP, spol. s r. o., vznikla v roku 1992, má 25 ročnú skúsenosť. Firma ponúka doplnkové vykurovanie drevom, čo v súlade s podporou obnoviteľných zdrojov energie v Európe prináša všestranný rozvoj podniku. Romotop vďaka špičkovému dizajnu a kvalite spaľovania nachádza ľahko odbyt na domácom trhu aj v zahraničí. Vďaka tomu dnes patrí medzi najväčších európskych výrobcov v oblasti vývoja, inovácií, výroby a predaja krbových kachlí a krbových vložiek. Nech už preferujete akýkoľvek spôsob vykurovania – teplovodné, teplovzdušné či klasické krbové kachle, môžete sa spoľahnúť na tím odborníkov z Romotopu a ich silné zázemie viac než päťsto preškolených partnerov a autorizovaných predajcov výrobnej značky Romotop. V súčasnosti sa krbové kachle a krbové vložky stále častejšie stávajú ak nie primárnym, tak aspoň významným zdrojom vykurovania rodinných domov. Tento trend je absolútne logický, ak si uvedomíme, ako klesá energetická náročnosť moderných domov a stúpajú ceny energií. Našou hlavnou devízou je komplexná ponuka služieb s poskytovaním poradenstva a vrátane odborného servisu. Navrhneme vhodné komplexné riešenie, zaistíme realizáciu krbových kachlí, krbov, montáž aj dopravu. Produkty Romotop využíva viac než 600-tisíc spokojných domácností.
Dnešná doba predkladá odboru krbových kachlí a krbových vložiek naozaj náročné ciele. Na rozdiel od čias minulých, od nás sa požaduje nielen nevšedný estetický zážitok, ale zvlášť vysoká účelnosť výrobku a jeho vysoká efektivita a ekologickosť. Naše výrobky sa v moderných domácnostiach stále častejšie stávajú najvýznamnejšími zdrojmi tepla. Práve preto bol vo firme Romotop vytvorený inovačný tím, ktorý má za úlohu posúvať krbové vyhrievacie telesá smerom k vysoko účinným, čisto pracujúcim strojom. Vďaka svojmu etickému kódexu presadzuje firma Romotop vo svojich inovatívnych riešeniach vždy ekológiu a ekonomickosť prevádzky. Cieľom inovačného tímu je prinášať nové technické riešenia zvlášť v oblasti návrhu spaľovacích komôr, nadväzujúcich ciest spalín a riadenia spaľovacieho procesu. Výsledkom tohto úsilia sú už dnes výrobky dosahujúce omnoho stabilnejší priebeh horenia v širokom intervale tepelných výkonov. Firma Romotop je okrem iného vlastníkom patentu prinášajúceho zákazníkom teplovodný výmenník, ktorý dosahuje vyšší prenos tepla do výhrevného média a zaisťuje menšie množstvo škodlivín produkovaných spaľovaním biomasy.
| INDIVIDUÁLNA CENA |

