Krbové vložky Romotop disponujú luxusnými krbovými vložkami a naviac patria medzi špičky v Európe, čo sa týka vývoja a inovacie. Okrem rady krbových vložiek Romotop HEAT a DESIGN, sa uvádza na trh aj značka DINAMIC, krbové vložky s teplovodným výmenníkom pre lepšiu reguláciu tepla a väčšiu úsporu. Ku krbovým vložkám ponúkame veľké množštvo značkového príslušenstva a doplnkov.
O krbových vložkách Romotop sa hovorí, že sa jedná o zlatý stred a ich nákupom rozhodne nespravíte chybu. V ponuke nájdete rôzné druhy presklenia od klasického rovného, cez rohové až po trojstranné typu C a U. Vďaka tomu krbové vložky Romotop spĺňajú aj najnáročnejšie požadavky na výsledný design novo zamýšlaného krbu.
Okrem vyššie spomínaných variantov presklenia ponuka Romotopu zahŕňa kompletnú radu jedinečných funkčných specifík. Môžete si vybrať z vložiek prispôsobených pre teplovzdušné (konvekčné) a sálavé (akumulačné) kúrenie. Krbové vložky s teplovodným výmeníkom umožňujú vykúriť celý dom, varianty so zadným prikladaním prispejú k čistote a pohodliu. Séria krbových vložiek pre nízkoenergetické a pasívne domy sú vhodné práve pre takých ľudí, ktorí takú stavbu plánujú.
Základom značky Romotop je technická vyspelosť vo všetkých svojich produktov. Inovační tým, neustále pracuje na vylepšení ohniska, aby dosiahla ešte vyššiu účinnosť. Nemôžu vynechať ani ekológiu a snažia sa dosahnúť čo najnižšiu emisiu škodlivých látok. Romotop je vlastníkom patentu prinášajúci zákazníkom teplovodní výmenník, ktorý dosiahne vyššiu efektivitu z hľadiska prenosu tepla do vykurovacieho média a zaisťuje menšie množstvo škodlivín produkovaných spaľovaním biomasy.
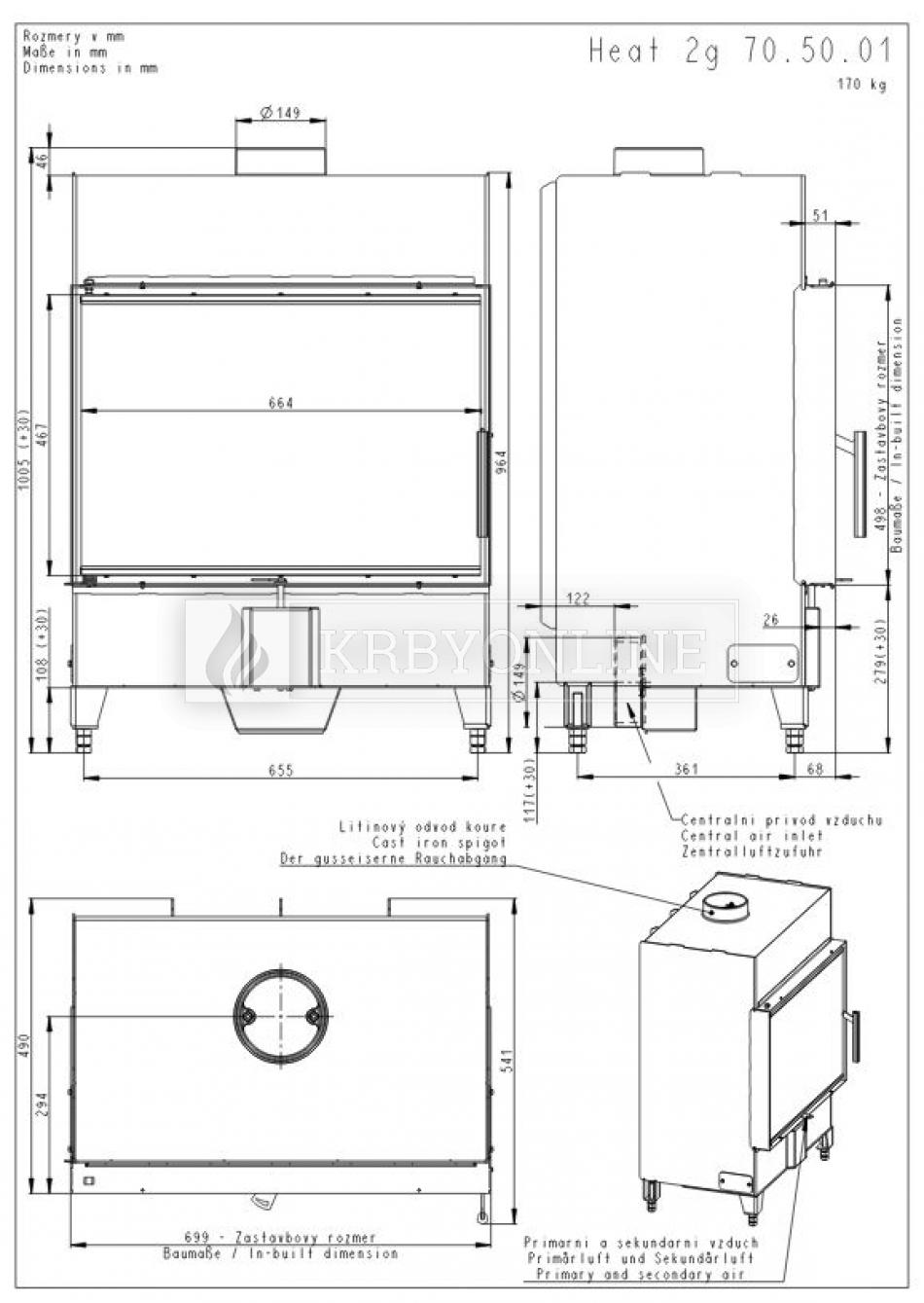
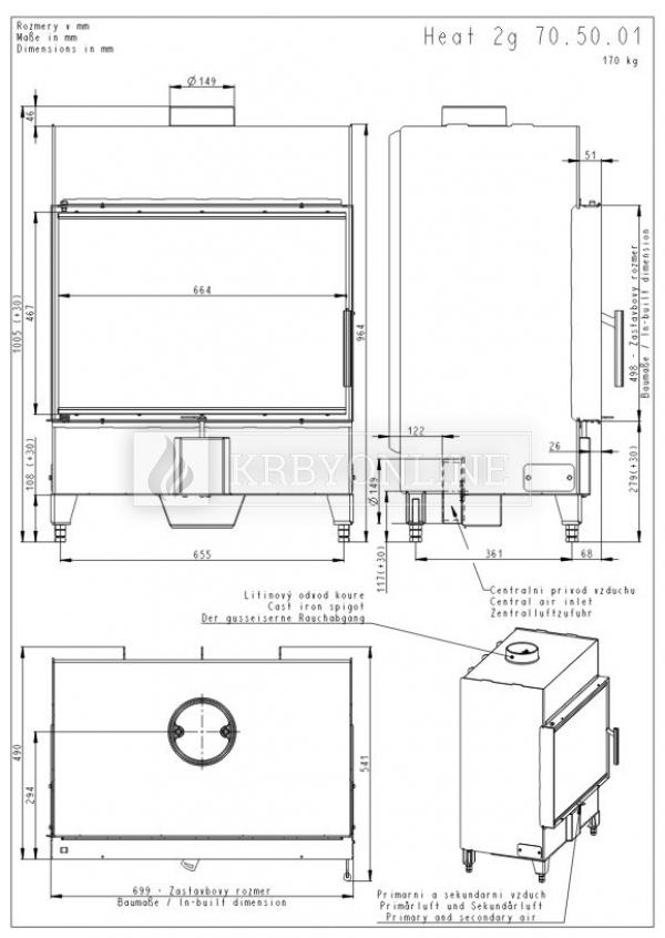
Výhody tejto krbovej vložky:
• špeciálny systém vedenia spalín Romotop DOUBLE SPIN
• určená aj pre nízkoenergetické stavby
• príprava pre napojenie externého spaľovacieho vzduchu (CPV)
• liatinový rošt
• popolník
• šamotová spaľovacia komora
• nastaviteľné nohy
• sklo s potlačou
• rám dvierok zo špeciálneho pevného valcovaného profilu
• možnosť doplniť zástavbovým rámikom
• splňuje normy: EN 13 229, DIN+, 15a B-VG od 2015, Bimsch V ½, zákon o ochrane ovzdušia ČR

Horenie je mimoriadne stabilné pri rôznych dávkách paliva. Proces horenia sa ľahko udržuje aj pri malých dávkách paliva, teda prikúrení na nízký výkon.
Počas prevádzky v rozsahu ideálneho výkonu je stále dosiahnuté optimálne spaľovanie, ktoré je obvykle u iných výrobkov dosiahnuté omnoho užšom intervale. Samozrejme ekológia prevádzky ide ruka v ruke s jeho ekonomikou.
Projektantom aďalším odborníkom umožňujú krbové vložky Romotop svoje umiestnenie do širokého spektra stavieb s rôznymi tepelnými stratami, a to aj tam, kde obvykle krbová vložka s veľkým presklením nebola vhodná.


Doporučené príslušenstvo
- rámik štvorstranný plytký alebo polohlboký
- Akumulačná sada Romotop MAMMOTH bočná ( v jednej rade 3 ks), horná
• vysoká merná tepelná kapacita akumulačnej sady MAMMOTH
• maximálny prenos tepla spalín do akumulačných tvaroviek
• akumulácia tepla - vykurovanie aj po ukončení horenia v ohnisku
• doplnenie, alebo zvýšenie akumulačnej schopnosti stavby
• ľahká montáž
• hmotnosť bočnej sady 46 kg
• hmotnosť hornej sady 70 kg
- Airbox
• umožňuje dolné napojenie centrálneho prívodu vzduchu (CPV)
- Odnímateľná rukoväť
| INDIVIDUÁLNA CENA |

