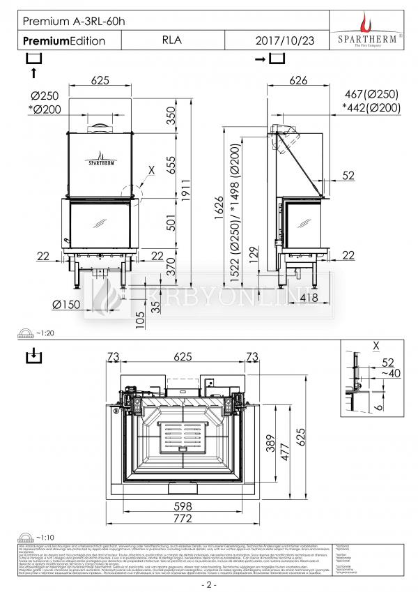
Spartherm Premium A 3RL 60h - nemecká kvalita, precízne vypracovaná krbová vložka. Silná oceľová konštrukcia, šamotové ohnisko, výsuvné bezrámové dvierka so skytou kľučkou na otváranie.
SPARTHERM - je synonymom toho, čo je moderné, kvalitné a dizajnové v oblasti vykurovacej techniky. Pre mnohých ľudí je tento názov neoddeliteľne spojený so zakladateľom spoločnosti, pánom G.M Rokossom, ktorý revolúciou na trhu s krbom nahradil liatinové vykurovacie vložky vysoko kvalitnou oceľou obloženou šamotovou výstelkou. Zavedenie novej technológie umožnilo vyvinúť niekoľko stoviek rôznych riešení s veľmi dobrými technickými parametrami a byť v popredí v krátkom čase. V súčasnej dobe spoločnosť vyváža svoje výrobky do celého sveta a neustále je lídrom v tomto odvetví.

Spartherm neustále investuje do nových technológií a nových strojov, aby mohol optimálne a ekonomicky fungovať. Používa vždy najnovšie inovácie a technológie, pre efektívnu výrobu a zachovanie jedinečnosti krbových vložiek a krbových kachlí.
Spartherm myslí ekologicky:
Drevo je najstarším palivovým materiálom ľudstva, ktorý od nepamäti dáva pocit bezpečia. Viditeľné plamene a upokojujúce sálavé teplo má pozitívny vplyv na vnútornú rovnováhu človeka.
Drevo je obnoviteľná surovina vysoko cenená a riadne účelovo pestovaná. Je neutrálny z hľadiska prítomnosti oxidu uhličitého v procese spaľovania.
Je zrejmé, že firma Spartherm neustále pracuje na tom, aby krbové vložky spĺňali najprísnejšie nemecké právne akty zamerané na ochranu prírodného prostredia s osobitným dôrazom na ochranu lesov v celoeurópskom rozsahu.
Okrem toho v ponuke sú aj najefektívnejšie krby s teplovodným výmenníkom, s účinnosťou od 50 až 80% do vody. Týmto spôsobom môžete využiť teplo vyrobené v krbovej obstavbe aj v ďalších priestoroch vo vašej domácnosti.
Krbové vložky sa vyznačujú širokým výberom sklenených tvarov a dverami. Ponuka od Spartherm zahŕňa: krbové vložky, ekologické krbové vložky druhej generácie, krbové vložky s vodným plášťom, plynové krby DRU, vložky do pecí, krby pre pasívne domy a široký výber príslušenstva. Spartherm uvádza na trh celú líniu krbových vložiek od najmenších až po premiové značky. Rada MINI je základný model, s vysokou účinnosťou a nízkym výkonom. Preto sú vhodné do dnešných moderných, nízkoenergetických domov. Línia Global, čo ešte stále rešpektuje minimálne tepelné straty domu a je prispôsobený týmto trendom. Výhodou je vývod dymovodu v rozmedzí 160 - 180mm. Varia, najžiadanejšia rada s rovným alebo rohovým presklením až do šírky 1000mm je najoblúbenejším krbom. Tieto krbové vložky majú vyšší výkon a dokážu vykúriť väčšie priestory. Zároveň, ale nie v poslednom rade sú krbové vložky Premium. Táto exkluzívna rada vyniká neštandardnými riešeniami, ako napr. bezrámové sklo alebo skrytá kľučka. Krbové vložky Spartherm a DRU plynové krby sú výrobky najvyššej kvality, ktoré poskytujú pocit bezpečia a vytvárajú dojem útulnosti.
Spartherm Premium: 0% rám, 100% pohľad na oheň
Inovatívne, bezrámové krbové vložky. Špeciálne bezrámové sklo umožní vychutnať si oheň bez obmedzenia. Dvere zapadajúce do kanálu zaručujú dokonalý pohľad na oheň. Skrytá kľučka, v jednej rovine s rámom krbovej vložky dodáva estetický dojem a poskytuje najlepší pohľad na oheň.
Krbové vložky Premium sú najvyššej kvality. Možné ich dodatočne vybaviť elektrickým zdvíhaním dverí SESAM-2, automatickým regulátorom spaľovacieho procesu S-Thermatik a modulom S-Kamatik-2 – regulátor ťahu.
Krbová vložka Spartherm Premium je vysoko kvalitná, precízne vypracovaná podľa najprísnejších nemeckých noriem s vonkajším oceľovým telom a vnútorným lemovaným šamotom alebo vermiculitom. Krbová vložka má žiaruvzdovné sklo so systémom čistého skla. Krb má prívod externého vzduchu. Záruka: 5 rokov, s možnosťou predĺženia až na 10 rokov so Spartherm Family.

Ďalšie výhody krbovej vložky:
- nemecká kvalita, precíznosť
- spaľovanie s maximálnou účinnosťou a dokonalým technickým riešením
- perfektný dizajn, spolahlivosť, komfort, kvalita
- spĺňa nemecké bezpečnostné a emisné normy
- moderné nadčasové prevedenie krbov
- elegancia a maximálna precíznosť stvárnenia od nemeckého koncernu SPARTHERM
| INDIVIDUÁLNA CENA |

